Timings: Mon to Sat - 9am To 6pm
  • Mail Us On
  • info@matrixsteelsolutions.org
  • Call Us On
  • +91 92612 31580
Quick Enquiry
Enquiry Now

Structural Steel Detailing Services in Australia

Structural Steel Detailing Services in Australia by Matrix Steel Solutions

Structural Steel Detailing Services in Australia from Matrix Steel Solutions involve creating precise drawings and 3D models that guide the fabrication and erection of steel components in construction projects. These services are essential in projects that involve steel buildings, bridges, commercial infrastructure, and industrial plants. Each steel beam, column, joint, truss, or bolt is documented with exact specifications through Structural Steel Detailing Services in Australia by Matrix Steel Solutions to ensure accurate assembly and seamless integration on-site.


Importance of Structural Steel Detailing Services in Australia

In Australia, the demand for Structural Steel Detailing Services in Australia is growing rapidly with the surge in infrastructure development and urban expansion. From skyscrapers to large industrial plants, the backbone of Australian construction depends on reliable Structural Steel Detailing Services in Australia from companies like Matrix Steel Solutions. These services reduce errors, increase efficiency, and help meet tight project deadlines.


What We Offer: Expert Structural Steel Detailing Services in Australia by Matrix Steel Solutions

As a leading provider of Structural Steel Detailing Services in Australia, Matrix Steel Solutions delivers accurate, code-compliant, and cost-effective solutions tailored to every project type. Our team specialises in providing Structural Steel Detailing Services in Australia for commercial buildings, industrial plants, bridge detailing, and residential complexes.

Our Key Services under Structural Steel Detailing Services in Australia:

  • 2D Steel Shop Drawings
  • 3D BIM Modeling
  • Steel Erection Drawings
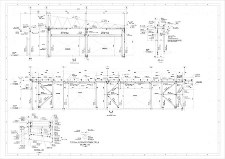
  • Connection Design and Detailing
  • Anchor Bolt Layouts
  • Miscellaneous Steel Detailing (stairs, ladders, railings)
  • Steel Deck and Joist Detailing
  • Pre-engineered Building Steel Detailing

With Matrix Steel Solutions offering Structural Steel Detailing Services in Australia, fabricators can eliminate on-site errors, reduce material waste, and speed up the construction process.

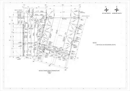
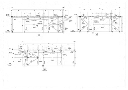
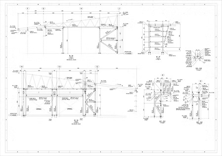
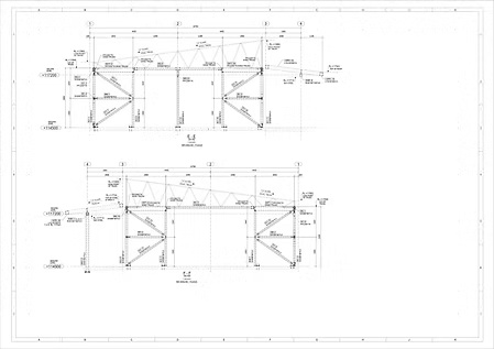
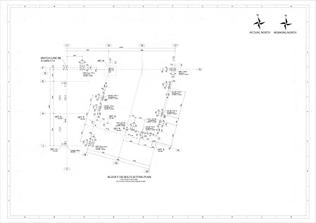
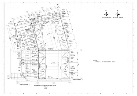
HD-B0LT SETTING PLAN
ERECTION DRAWINGS
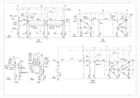
ASSEMBLY DRAWINGS

Industries We Serve with Structural Steel Detailing Services in Australia

Matrix Steel Solutions provides Structural Steel Detailing Services in Australia across a wide range of industries:

  1. Commercial Buildings
    From high-rises to shopping centres, Structural Steel Detailing Services in Australia ensure structural integrity and precision in every steel component.
  2. Industrial Facilities
    Our Structural Steel Detailing Services in Australia support the heavy-duty demands of factories, refineries, and production plants.
  3. Infrastructure Projects
    Bridges, highways, stadiums, and airports all rely on our accurate and code-compliant Structural Steel Detailing Services in Australia.
  4. Residential Developments
    For villas, apartments, and multi-storey buildings, our Structural Steel Detailing Services in Australia ensure reliable framing and load-bearing structures.
  5. Warehousing and Distribution Hubs
    Large-span buildings benefit from our efficient Structural Steel Detailing Services in Australia that enhance speed and reduce errors.

Why Matrix Steel Solutions is Best for Structural Steel Detailing Services in Australia

  1. High Accuracy and Compliance
    Our Structural Steel Detailing Services in Australia follow AS/NZS and local building codes for flawless execution.
  2. Fast Turnaround Time
    With our advanced systems, we deliver Structural Steel Detailing Services in Australia within strict project timelines.
  3. Extensive Industry Experience
    Matrix Steel Solutions has been a trusted name in Structural Steel Detailing Services in Australia across sectors.
  4. Cost-Effective Solutions
    We provide budget-friendly Structural Steel Detailing Services in Australia without compromising on quality.
  5. Customised Packages
    From small buildings to industrial complexes, we offer flexible Structural Steel Detailing Services in Australia tailored to your needs.

Benefits of Structural Steel Detailing Services in Australia by Matrix Steel Solutions

Choosing Matrix Steel Solutions means you benefit from premium Structural Steel Detailing Services in Australia, including:

  • Reduced fabrication errors and rework
  • Better coordination between stakeholders
  • Shorter construction timelines
  • Clear bill of materials
  • Integration into BIM workflows
  • Enhanced safety and design accuracy

Contact Matrix Steel Solutions – Your Partner for Structural Steel Detailing Services in Australia

Our dedicated team is here to provide the best Structural Steel Detailing Services in Australia for every kind of construction project. Whether you are developing a warehouse, a commercial tower, or infrastructure, Matrix Steel Solutions offers unbeatable Structural Steel Detailing Services in Australia that bring your designs to life.

Structural Steel Detailing Services Australia

Steel Detailing Services BRISBANE | Steel Detailing Services ADELAIDE | Steel Detailing Services CANBERRA | Steel Detailing Services DARWIN | Steel Detailing Services HOBART | Steel Detailing Services MELBOURNE | Steel Detailing Services PERTH | Steel Detailing Services SYDNEY | Steel Detailing Services VICTORIA | Steel Detailing Services TASMANIA | Steel Detailing Services QUEENSLAND | Steel Detailing Services NSW